Хочу посмотреть
Предложить цену
Описание
Уникальное предложение!
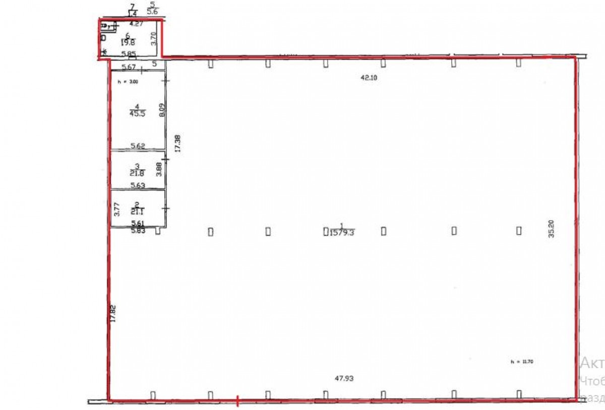
Складское помещение, общей площадью 1 694,5 кв.м.:
- Помещение склада – 1 694,5 кв.м., 1 этаж, шаг колонн 6*18, высота потолков 11.8 метров, автоматические роллерные ворота «HORMANN» под еврофуру – 1 шт. Полы выровненные, бетонная стяжка с антипылевым покрытием. Мостовые краны грузоподъемностью 15 т. – 1 шт. (списан). В наличии пожарная сигнализация, водопровод, канализация, отопление, подсобные помещения. Арендная ставка – 690 руб. кв.м. (УСН), 715 руб. кв.м. (НДС)
УСН.
- Офисно-бытовые помещения – от 20 кв.м. до 1200 кв.м.. Евроремонт, помещения для кухни, с/у, раздевалок, душевых. Окна – спеклопакеты, подвесные потолки (армстронг), стены – окрашенный гипрок, пол – ламинат/линолеум/плитка, Интернет, телефония. Месячная арендная ставка 700 руб./кв.м., (НДС).
Прилегающая территория до 5000 кв.м., возможность ограждения требуемого участка. Арендная ставка 150 руб. за кв.м./мес., (НДС)
В общую сумму ежемесячной арендной платы не включены коммунальные услуги, услуги телефонной связи, вывоз мусора, охрана, услуги КПП.
Дата размещения: 27.10.2025
Другие объекты
A PHP Error was encountered
Severity: Warning
Message: Invalid argument supplied for foreach()
Filename: search/RD_ad_page_tpl.php
Line Number: 356
Backtrace:
File: /var/www/primebro_com_usr/data/www/primebro.com/application/views/_redesign/search/RD_ad_page_tpl.php
Line: 356
Function: _error_handler
File: /var/www/primebro_com_usr/data/www/primebro.com/application/controllers/Search.php
Line: 402
Function: view
File: /var/www/primebro_com_usr/data/www/primebro.com/index.php
Line: 343
Function: require_once