31 080 000 ₽
Категория
Торговая площадь
Хочу посмотреть
Предложить цену
Описание
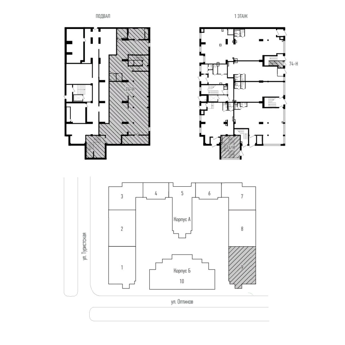
Коммерческое помещение в ЖК "Морская звезда" комфорт класса. Хороший пешеходный и авто трафик. «Морская Звезда» – современный жилой комплекс на северо-западе Санкт-Петербурга, вблизи парка 300-летия Санкт-Петербурга и озера Лахтинский Разлив. Его особенность – удачное расположение в спальном районе Северной столицы с полностью сложившейся инфраструктурой
Дата размещения: 10.04.2026
Другие объекты
A PHP Error was encountered
Severity: Warning
Message: Invalid argument supplied for foreach()
Filename: search/RD_ad_page_tpl.php
Line Number: 356
Backtrace:
File: /var/www/primebro_com_usr/data/www/primebro.com/application/views/_redesign/search/RD_ad_page_tpl.php
Line: 356
Function: _error_handler
File: /var/www/primebro_com_usr/data/www/primebro.com/application/controllers/Search.php
Line: 402
Function: view
File: /var/www/primebro_com_usr/data/www/primebro.com/index.php
Line: 343
Function: require_once