1 135 680 ₽ в месяц
Категория
Торговая площадь
Хочу посмотреть
Предложить цену
Описание
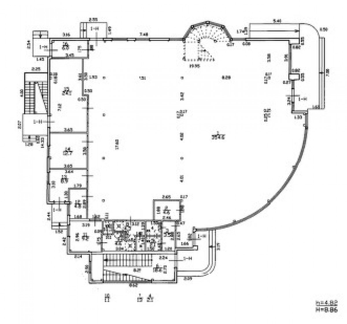
Предлагается в аренду отдельно стоящее помещение с земельным участком 2570 кв м. В арендную плату входит также пользование земельным участком.
Мощности 208 кВт/196,82 кВт.
Заключены прямые договоры со всеми ресурсоснабжающими организациями.
Дата размещения: 27.10.2025
Другие объекты
A PHP Error was encountered
Severity: Warning
Message: Invalid argument supplied for foreach()
Filename: search/RD_ad_page_tpl.php
Line Number: 356
Backtrace:
File: /var/www/primebro_com_usr/data/www/primebro.com/application/views/_redesign/search/RD_ad_page_tpl.php
Line: 356
Function: _error_handler
File: /var/www/primebro_com_usr/data/www/primebro.com/application/controllers/Search.php
Line: 402
Function: view
File: /var/www/primebro_com_usr/data/www/primebro.com/index.php
Line: 343
Function: require_once