80 000 ₽ в месяц
Категория
Торговая площадь
Хочу посмотреть
Предложить цену
Описание
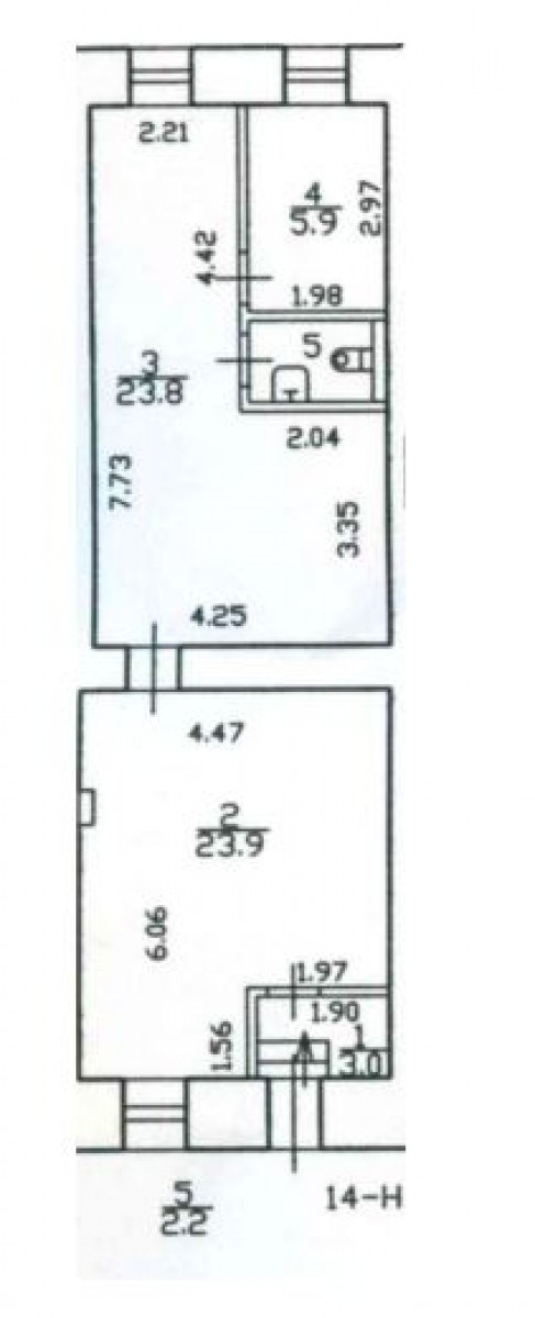
Предлагается в аренду помещение в 5 мин от ст м Московские ворота под магазин.
Высота потолков - 3,3 м, мощности 14 кВт, санузел.
БЕЗ КОМИССИИ!
Дата размещения: 27.10.2025
Другие объекты
A PHP Error was encountered
Severity: Warning
Message: Invalid argument supplied for foreach()
Filename: search/RD_ad_page_tpl.php
Line Number: 356
Backtrace:
File: /var/www/primebro_com_usr/data/www/primebro.com/application/views/_redesign/search/RD_ad_page_tpl.php
Line: 356
Function: _error_handler
File: /var/www/primebro_com_usr/data/www/primebro.com/application/controllers/Search.php
Line: 402
Function: view
File: /var/www/primebro_com_usr/data/www/primebro.com/index.php
Line: 343
Function: require_once