Хочу посмотреть
Предложить цену
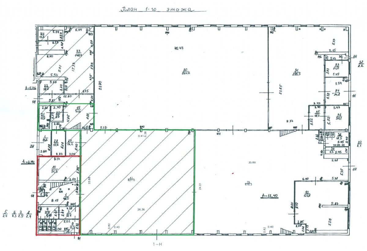
Описание
Комплекс предназначен для следующих видов деятельности:
- производственная деятельность
- складская деятельность.
Комплекса состоит:
- производственное помещение площадью 627 кв.м. (1 этаж)
- офисно-административные помещения площадью 352,3 кв.м. с отдельным входом.
Высота потолков в производственном помещении 12 м.
Ворота (4000 х 4500 мм)
Кран- балка 5 т (высота подъёма 6 м)
Возможна дополнительная аренда открытой территории для парковки и хранения.
Дата размещения: 27.10.2025
Другие объекты
A PHP Error was encountered
Severity: Warning
Message: Invalid argument supplied for foreach()
Filename: search/RD_ad_page_tpl.php
Line Number: 356
Backtrace:
File: /var/www/primebro_com_usr/data/www/primebro.com/application/views/_redesign/search/RD_ad_page_tpl.php
Line: 356
Function: _error_handler
File: /var/www/primebro_com_usr/data/www/primebro.com/application/controllers/Search.php
Line: 402
Function: view
File: /var/www/primebro_com_usr/data/www/primebro.com/index.php
Line: 343
Function: require_once