1 800 000 ₽ в месяц
Категория
Торговая площадь
Хочу посмотреть
Предложить цену
Анжелика
8 (913) 985-7271
Описание
Предлагается в аренду коммерческие площади от собственника в одном из самых сильных торговых кластеров Санкт‑Петербурга – на Пятилеток, 2, с реальным потоком более 600 000 человек в месяц и окружением из федеральных сетей.
– сформированный торговый узел с устойчивым спросом на услуги и ритейл.
—Рядом работают якорные арендаторы, которые постоянно генерируют трафик.
—Ежемесячный совокупный поток посетителей – порядка 600 000 человек, что идеально для розницы, услуг и HoReCa.
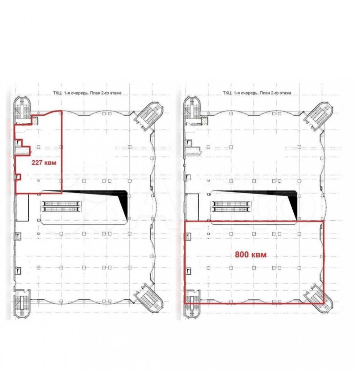
Площади и условия
Доступны к аренде несколько форматов помещений, с возможностью выбора и комбинации блоков под задачи арендатора, в том числе с отдельным входом и индивидуальным режимом работы. Стоимость включает НДС.
Блок от 1500- 2 000 м² – для якорного формата: крупный ритейл, спортивный центр, семейный развлекательный центр, многозальный клуб и т.п. Есть возможность организации отдельного входа. Стоимость 1200руб/м2+ КУ
Дата размещения: 19.12.2025
Другие объекты
A PHP Error was encountered
Severity: Warning
Message: Invalid argument supplied for foreach()
Filename: search/RD_ad_page_tpl.php
Line Number: 356
Backtrace:
File: /var/www/primebro_com_usr/data/www/primebro.com/application/views/_redesign/search/RD_ad_page_tpl.php
Line: 356
Function: _error_handler
File: /var/www/primebro_com_usr/data/www/primebro.com/application/controllers/Search.php
Line: 402
Function: view
File: /var/www/primebro_com_usr/data/www/primebro.com/index.php
Line: 343
Function: require_once