Хочу посмотреть
Предложить цену
Анжелика
8 (911) 830-2447
Описание
Многоквартирный жилой дом расположен в Жилом комплексе бизнес-класса Премьер Палас в самой Премиальной части Петроградского острова, на обустроенной набережной. Одно из самых живописных мест Петербурга, в окружении рек Малой Невки и Ждановки.
—Лифты: Есть.
—Вентиляция: Приточно-вытяжная.
—Кондиционирование: .
—Безопасность: Круглосуточная охрана, Контроль доступа, Система пожаротушений, Видеонаблюдение.
—Парковка: Подземная.
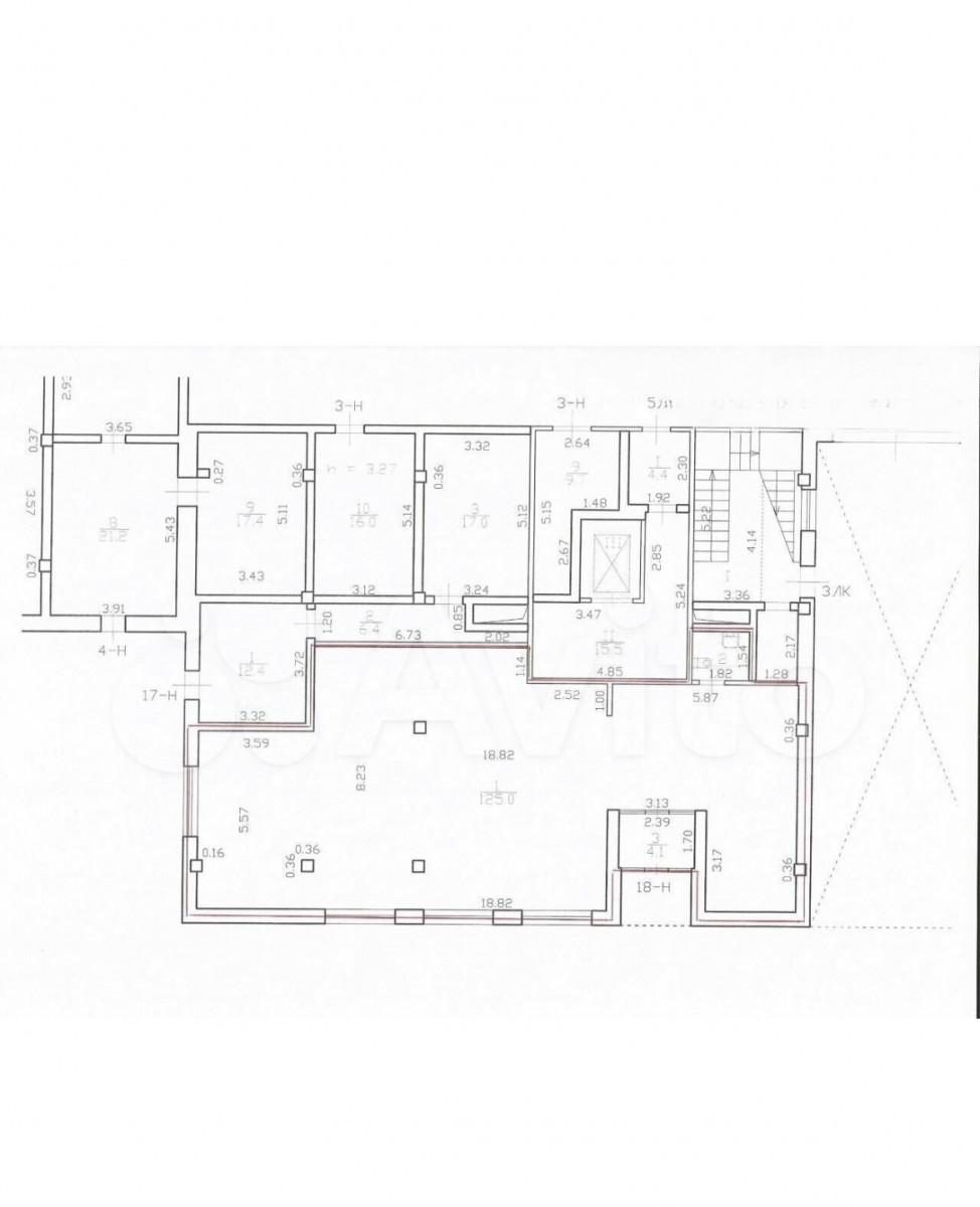
Описание помещения: Электрическая мощность 20 кВт.
Отдельный вход. Этаж: 1. Планировка: смешанная. Типовой ремонт. Высокие потолки. Высота потолка: 3.8м.
Дата размещения: 06.01.2026
Другие объекты
A PHP Error was encountered
Severity: Warning
Message: Invalid argument supplied for foreach()
Filename: search/RD_ad_page_tpl.php
Line Number: 356
Backtrace:
File: /var/www/primebro_com_usr/data/www/primebro.com/application/views/_redesign/search/RD_ad_page_tpl.php
Line: 356
Function: _error_handler
File: /var/www/primebro_com_usr/data/www/primebro.com/application/controllers/Search.php
Line: 402
Function: view
File: /var/www/primebro_com_usr/data/www/primebro.com/index.php
Line: 343
Function: require_once